Futura + JHMC
Mixed Use
Location
P.Velur, Tamil Nadu
Built-up area
8934 sq.ft
Client
Ar. Rajkumar & Dr. Janani Balasubramaniam

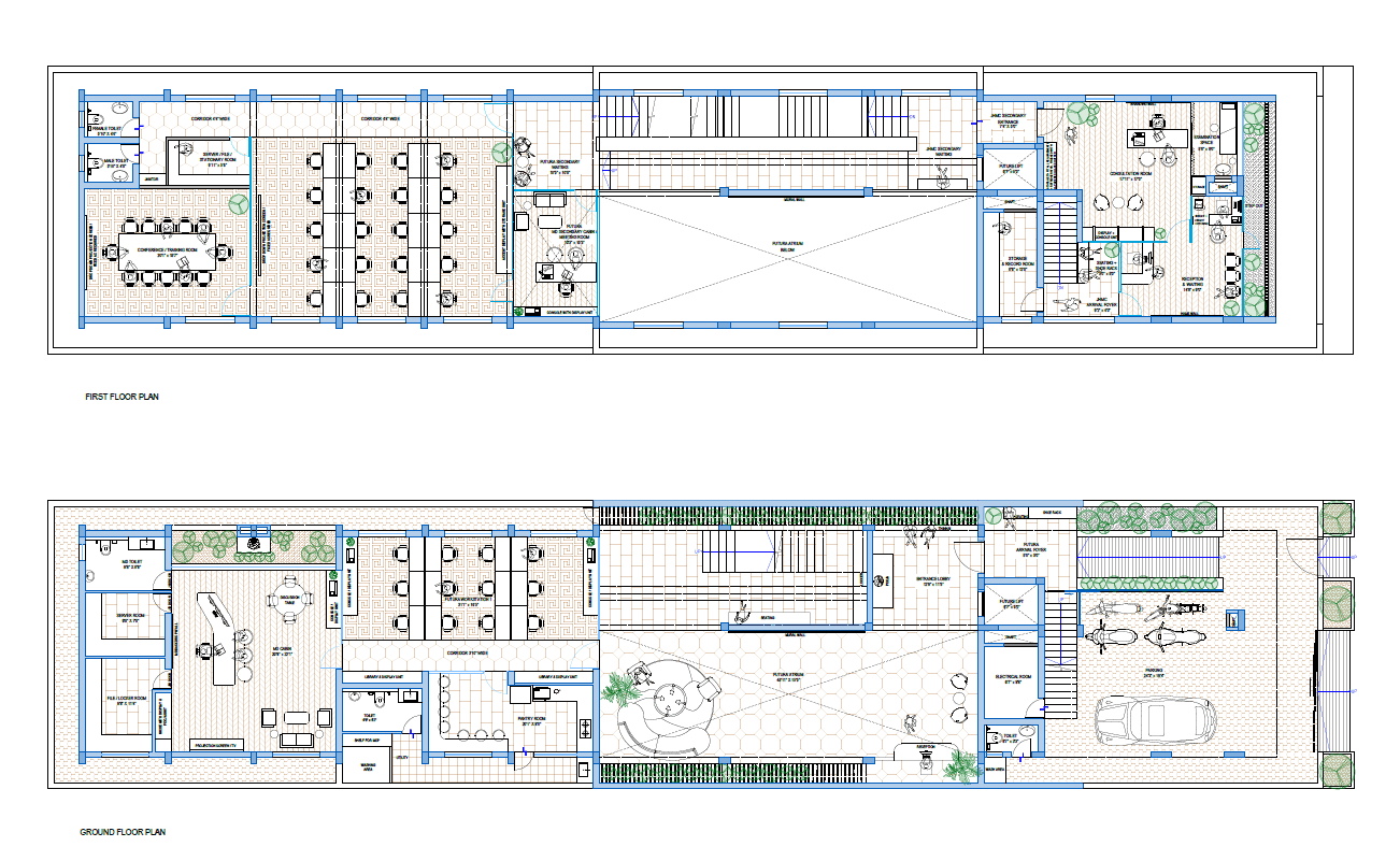
Designed around modern-day working patterns and shifting lifestyles, this project is intended for a family of four. Located in P.Velur, Tamil Nadu, it merges the idea of a home and workplace, bringing together a Stock Trading office and a Dietary Educational Clinic.
The elongated plot opens up as a narrow entryway with parking along the road to the east. To welcome all visitors, without hindering functional clarity, was the preliminary design objective of this access.
Upon arrival at the foyer, the design unfolds into a triple-height atrium, becoming an anchor to the narrative of the entire space. This central atrium space serves as a threshold separating the distinct office programs and their user groups. It houses a tall mural that introduces the Investment office, while the lift and staircases guide users towards the clinic on the upper floor.
Upon reaching this level, the Dietary Clinic and Consultation spaces overlook the entry through a screened facade. At the same time, the Operational Trading space retreats to the rear edge. The interior layouts are designed to be flexible, accommodating both private and focused working environments.
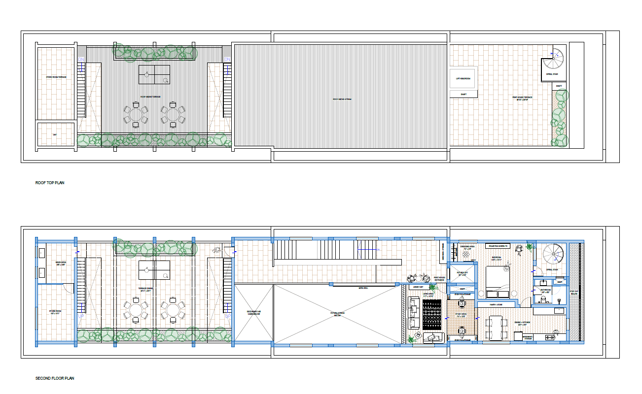
The top-most level houses a compact and warm residence, paired with a semi-open rooftop. This space also doubles as a dining area for office gatherings, whilst offering scenic views of the surroundings.
By integrating work and daily living within a single architectural narrative, the project becomes a fluid environment which responds to change by remaining rooted in the realities of contemporary life.












